

担当者のコメント
現在大手チェーン鰻店 盛業中!利回り6.62%
国道26号線に接面。向かい側に大手牛丼チェーン店あり
| 種目 | 価格 | 所在地 | 交通 |
| 収益物件 | 5380 万円 |
堺市西区浜寺元町2丁 | JR阪和線 津久野駅 徒歩17分 徒歩15分 |
| 土地面積 | 建物面積 | 専有面積 | バルコニー |
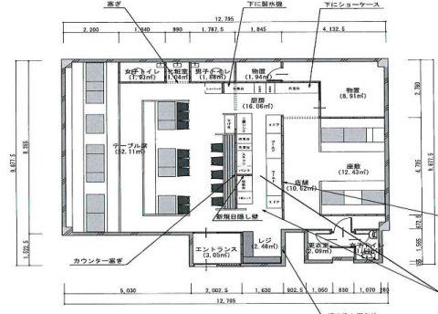
| 220.00㎡ | 99.99㎡ | 0.00 | 0.00 |
| 間取り | 構造 | 築年月 | 管理費 |
| 平屋店舗 | 鉄骨造 | 昭和58年4月 | |
| 修繕積立金 | 用途地域 | 建ぺい率 | 容積率 |
| 近隣商業地域 | 80 | 300% | |
| 土地権利 | 地目 | 学校区 | 取引態様 |
| 所有権 | 雑種地 | 仲介 |
〒591-8034
堺市北区百舌鳥陵南町3丁13
TEL.072-270-8881
FAX.072-270-8882
